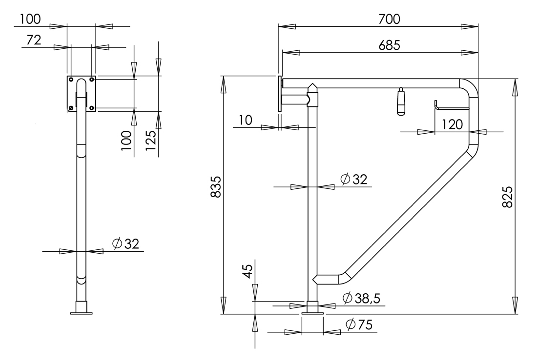
Horizontal folding grab bar
Trapezoidal drop-down support bar, horizontal rotation, with two anchor points fixed to wall and floor, and toilet roll holder.
Made of AISI 304 stainless steel tube, satin finish, 32 mm diameter.
• Suitable for accessible washbasins for elderly people or those with reduced mobility, designed for bathrooms without architectural barriers.
• Anchoring system locks the bar in a perpendicular position, preventing accidental rotation; released by a handle.
• Granulated grip areas for better hold, with high durability and oxidation resistance.
• Optionally available with a kit to prevent electrical conductivity (KA0020).

